Trilocale in vendita

Trieste, Via Guido Brunner - Ospedale Maggiore
€ 339.000
3 locali 3 locali
114 Mq 114 Mq

Trilocale in vendita

Trieste, Via Guido Brunner - Ospedale Maggiore

Descrizione annuncio

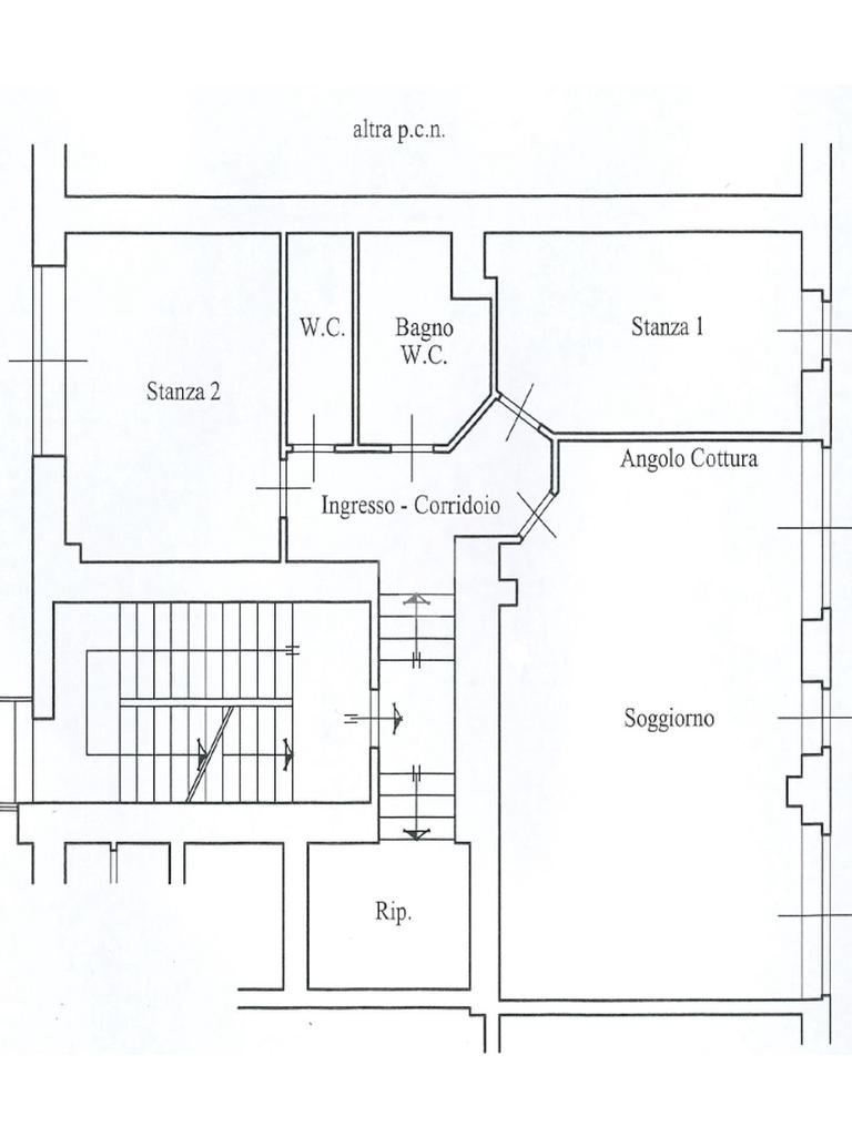
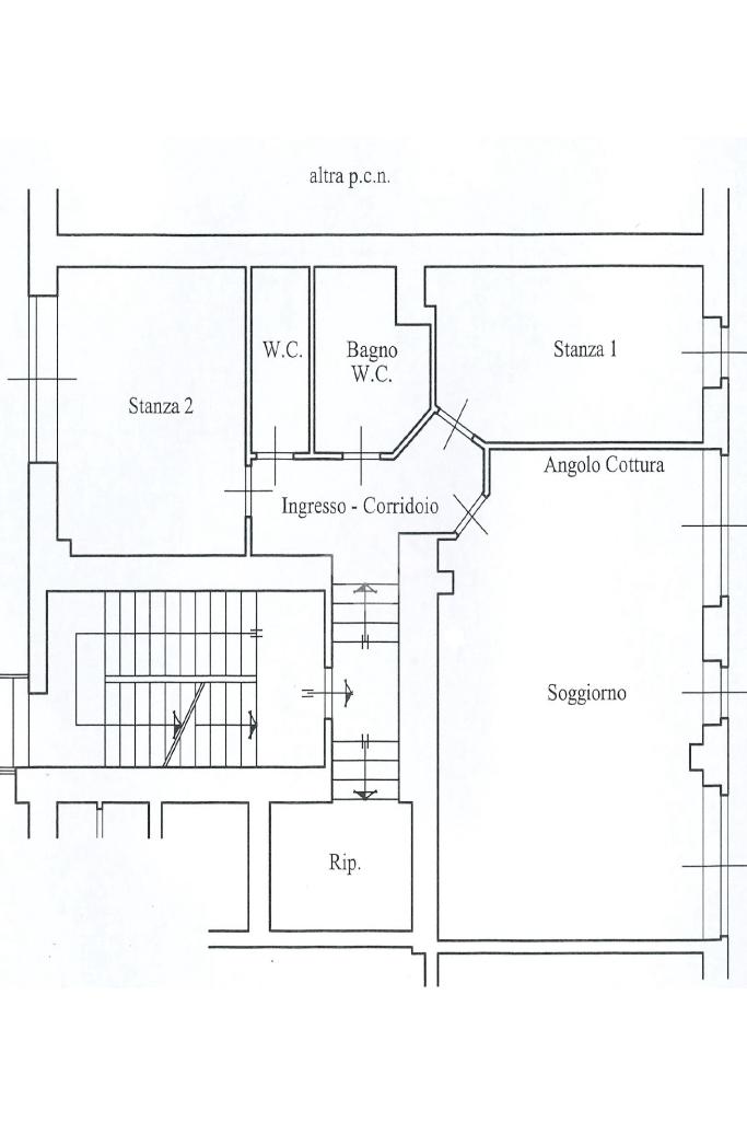
In zona centrale e servita proponiamo in vendita un appartamento completamente ristrutturato composto da una comoda zona giorno con cucina a vista, due camere da letto, un bagno completo cieco, un secondo bagno di servizio cieco e un ripostiglio. L'immobile è stato oggetto di una ristrutturazione totale negli ultimi anni e si presenta con finiture di alta qualità e impianti certificati. Il riscaldamento è autonomo con caldaia installata nel 2024. Porta blindata, climatizzatore con doppio split. Possibilità di acquisto di una comoda autorimessa di 60 metri quadri che può ospitare tre autovetture al prezzo di 159000 euro. Il box oltre all'accesso auto ha anche l'accesso pedonale che porta direttamente nel condominio. Ottimo anche come investimento per utilizzo B&B.

Mostra tutto

Nelle vicinanze

Trasporto pubblico Trasporto pubblico
stazione di Trieste Centrale
stazione di Trieste Centrale
1,1 Km
Trieste Campo Marzio Smistamento
Trieste Campo Marzio Smistamento
2,3 Km
Piazza Oberdan
Piazza Oberdan
620 m
Piazza Casali
Piazza Casali
800 m
bus 25-26-26/
bus 25-26-26/
30 m
Ricariche auto elettriche Ricariche auto elettriche
Eneldrive Ospedale Maggiore Di Trieste
130 m
EnelDrive Granatieri
1,1 Km
Eneldrive Comune Di Trieste - Consigli Circoscrizionali
1,3 Km
Eneldrive Molo Sartorio
1,7 Km
Eneldrive Ginestre
1,9 Km
Scuole Scuole
Istituto comprensivo Divisione Julia
160 m
Istituto tecnico industriale Alessandro Volta
200 m
Succursale liceo scientifico Galilei
330 m
Scuola Elementare Statale Anita Pittoni
340 m
Scuola secondaria di secondo grado di economia e ragioneriaGiosuè Carducci
400 m
Farmacia Farmacia
Farmacia Ai Due Lucci
50 m
Farmacia Al Centauro
260 m
Alla Salute
270 m
Farmacia
280 m
Farmacia Comunale Al Cammello
300 m
Ospedali Ospedali
Ospedale Maggiore
160 m
Sanatorio Triestino
790 m
IRCCS Materno Infantile Burlo Garofolo
1,7 Km
Supermercati Supermercati
Despar
60 m
Conad
230 m
Pam local
260 m
Coop
310 m
Spar
400 m
Negozi Negozi
Mercatino dell'usato e vintage
80 m
Abbigliamento Nistri
130 m
OVS
200 m
il Pane Quotidiano
240 m
Manifatture Nico
260 m
Bar Bar
Bar Gatteri
100 m
Bar Costa
150 m
Vitz - ReUp Bar
160 m
Bar Politeama
210 m
Cafè Rossetti
240 m
Ristoranti Ristoranti
Krishna Ristorante Indiano
80 m
Tokyo
110 m
Ristorante Cina Cina
120 m
Alla Bella Napoli
140 m
Desideri e Auguri Da Marino's
140 m
Mostra tutto

Caratteristiche

Rif.:
61117541
Piano:
1 di 5 con ascensore (Piano basso)
Arredamento:
Completo
Condizionamento:
Autonomo
Ascensore:
Riscaldamento:
Autonomo
Mostra tutto
Prezzo Prezzo
€ 339.000
Rata mutuo Rata mutuo
€ 1.610 / mese
Proponi il tuo prezzoProponi il tuo prezzo
Immobile valutato con T·Valuta

Classe Energetica

D
D
D
D
D
D
D
D
D
EP globale non rinnovabile:
139.72 kW h/m² anno
EP globale rinnovabile:
0.58 kW h/m² anno
EP invernale del fabbricato:
EP estiva del fabbricato:
Anno di costruzione:
1976
Riscaldamento:
Autonomo
Tipo impianto:
A radiatori
Tipo alimentazione:
Metano

Ti interessa visionare l'immobile?

Fissa un appuntamento  Fissa un appuntamento

Richiedi informazioni

Clicca su Leggi per aprire l'informativa
* Questi campi sono obbligatori

Calcola il tuo mutuo

Semplice e senza impegno
Anticipo

( % )
Mutuo

( % )

pochi semplici passi

inserisci i tuoi dati
Questionario completato
Grazie per aver richiesto un appuntamento senza impegno con un nostro Consulente del Credito e Assicurativo.

Hai inserito correttamente tutti i dati necessari e a breve riceverai una e-mail con un link da convalidare per inviare i tuoi dati.
Affiliato
Bm3 Srl
Largo Barriera Vecchia, 15 34129 Trieste (TS)

Il nostro staff


  • Lorenzo Sartori
    Responsabile

  • Michela Murolo
    Affiliata

  • Marco Pastorino
    Collaboratore
Largo Barriera Vecchia, 15 34129 Trieste (TS)
Zona: Trieste Barriera - San Luigi
Mostra su mappa
Orari: da lunerdì a venerdì 9.00-13.00 e 15.30-19.30, sabato 9.00-12.00
Affiliato
Bm3 Srl
Largo Barriera Vecchia, 15 34129 Trieste (TS)

2026 Tecnocasa Franchising S.p.A. - P. IVA 08365160152 - Via Monte Bianco 60/A 20089 Rozzano (MI). Ogni agenzia ha un proprio titolare ed è autonoma. Privacy policy | Policy utilizzo | Cookie policy